nội thất đẹp

Chia sẻ cho bạn mẫu tủ bếp gỗ Laminate gọn nhẹ

Tủ bếp gỗ Laminate sản xuất trên dây chuyền hiện đại của Nhà Bếp Đẹp, chất liệu gỗ ép công

Bài trí những mẫu mặt bàn xoay – món đồ đa dụng nên có trong nhà

Mặt bàn xoay - món đồ đa dụng nên có trong nhà 1

Mặt bàn xoay được tạo ra từ chiếc một miếng gỗ tròn nhỏ có gắn trục gỗ hoặc trục sắt

Vì sao tủ bếp gỗ sồi Nga được nhiều người tin chọn?

Tủ bếp

Hiện nay, không khó để tìm một đơn vị thi công thiết kế tủ bếp nhưng chọn đâu là địa

Ngất ngây khi chiêm ngưỡng vẻ đẹp lãng mạn của ngôi nhà vintage ở Thụy Điển

Chiêm ngưỡng vẻ đẹp lãng mạn của ngôi nhà vintage ở Thụy Điển 1

Trải qua nhiều lần tu sửa, cuối cùng ngôi nhà được xây năm từ năm 1913 này đã được cải

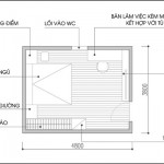
Bật mí 2 phương án bố trí nội thất cho căn phòng 18m²

2 phương án bố trí nội thất cho căn phòng 18m² 1

  Tôi đang sống một mình trong 1 căn phòng có kích thước 4,8 x 3,8m. Hiện tại căn phòng

Dưới đây là lý do tại sao tủ bếp Acrylic luôn là sự lựa chọn

Đây là loại tủ được làm từ chất liệu acrylic – một nhóm nguyên liệu nhựa dẻo có nguồn gốc

Cùng nhìn qua mẫu thiết kế thông minh cho căn hộ nhỏ 40m2

Một bức tranh khổ lớn của họa sĩ đương đại Zsuzsi Csiszér chính là điểm nhấn của không gian khu

Mơ mộng trong căn nhà màu trắng đầy tinh khôi và bình yên

Nếu không gian ngôi nhà của bạn quá nhỏ hẹp thì hãy ưu tiên đến việc trang trí làm sao

Mẫu thiết kế tủ bếp Laminate màu trắng đẹp và thanh lịch

Tủ bếp Laminate màu trắng đẹp

Với cương vị là nhà sản xuất tủ bếp hàng đầu, Tủ Bếp đưa ra những lời khuyên tốt nhất

Những mẫu tủ bếp hiện đại với gam màu sáng nhẹ nhàng và ấm cúng

Thiết kế với gam màu nhẹ nhàng, khiến cho bạn cảm giác được sự hiện đại, đặc biệt với màu

Mẫu ý tưởng thiết kế tủ bếp 2016 bạn cần xem qua trước khi thực hiện

Những mẫu thiết kế tủ bếp đơn giản nhưng với gam màu hài hoài từ vàng chanh đến màu tự

Xem qua mẫu thiết kế nhà bếp đẹp sau khi được đổi mới

 Từ một không gian nhỏ hẹp chật chội với những vật dụng bừa bộn, các nhà thiết kế đã biến

Biến đối ngỡ ngàng của 5 căn bếp sau khi cải tạo

Nếu thấy căn bếp nhà mình có gì đó không ổn hoặc bạn chưa thực sự hài lòng, hãy mạnh

Mẫu tủ bếp gỗ cao cấp

Tủ bếp có quầy bar có tính chịu lực cao, không thấm nước. Màu sắc đồng đều và có thể